Abitare Varese Srl
Locale commerciale in affitto a Varese
Varese
Zona: - Via Manin, 30
€ 1.500
#140 mq
#0
#3
Vedi più foto
Cod. VA/3016
€ 1.500
Classe energetica: G EP glnr: 80.03 kwh/㎥

Locale commerciale in affitto a Varese

- Via Manin, 30
140 mq
3
Descrizione

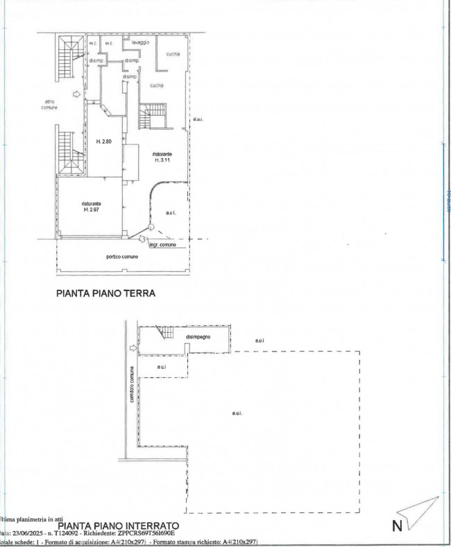
Varese, Masnago via Manin, in posizione altamente commerciale affittiamo negozio libero subito,
con ampie vetrine fronte strada, dotato di CANNA FUMARIA , composto da un grande open space , due locali sul retro,
tre servizi e un locale sotto negozio collegato internamente utilizzabile come magazzino o archivio .
Ampio parcheggio davanti al fabbricato.
Vicinissimo a uffici, istituti scolastici, stadio , palazzetto sport, centro sportivo, poliambulatorio diagnostico.

  • Locale commerciale in affitto a Varese
  • Locale commerciale in affitto a Varese
  • Locale commerciale in affitto a Varese
  • Locale commerciale in affitto a Varese
  • Locale commerciale in affitto a Varese
  • Locale commerciale in affitto a Varese
  • Locale commerciale in affitto a Varese
  • Locale commerciale in affitto a Varese
  • Locale commerciale in affitto a Varese
  • Locale commerciale in affitto a Varese
  • Locale commerciale in affitto a Varese
  • Locale commerciale in affitto a Varese
  • Locale commerciale in affitto a Varese
  • Locale commerciale in affitto a Varese
mostra di piùmostra di meno
Caratteristiche
Scopri le caratteristiche di questo immobile
Nelle vicinanze
Servizi e infrastrutture della zona
Ubicazione immobile
Contattaci


Alcuni immobili che potrebbero interessarti
Locale commerciale in affitto a Varese
in Affitto
Varese
Centro
€ 1.500
Locale commerciale in affitto a Varese
Cod. VA/2704
Varese centro, in posizione di forte passaggio difronte al municipio e al parco di Palazzo Estense, comodissimo al parcheggio comunale...
Dettagli
Locale commerciale in affitto a Varese
in Affitto
Varese
€ 1.500
Locale commerciale in affitto a Varese
Cod. VA/2997
Varese Centro, affitasi luminosissimo negozio ristrutturato recentemente , molto interessante , affacciato sulla Via Sacco proprio...
Dettagli
Locale commerciale in affitto a Varese
in Affitto
Varese
Centro
€ 1.200
Locale commerciale in affitto a Varese
Cod. VA/2706
Varese centro, in zona di forte passaggio difronte al municipio e al parco di Palazzo Estense affittiamo laboratorio con accesso da...
Dettagli
Locale commerciale in affitto a Varese
in Affitto
Varese
Belforte
€ 2.500
Locale commerciale in affitto a Varese
Cod. VA/3018
Varese, Viale Belforte, in complesso commerciale con ampio parcheggio clienti affittiamo negozio con laboratorio, doppi servizi e un...
Dettagli
Ultimo aggiornamento 30/03/2026
×
Codice
Contratto
Scegli dove cercare
Tipologia - multiscelta
Prezzo


Totale mq


Locali minimi
Bagni minimi
Camere minime
Altre opzioni - multiscelta